2013 | École Élie Dubois Renovation in Port-au-Prince

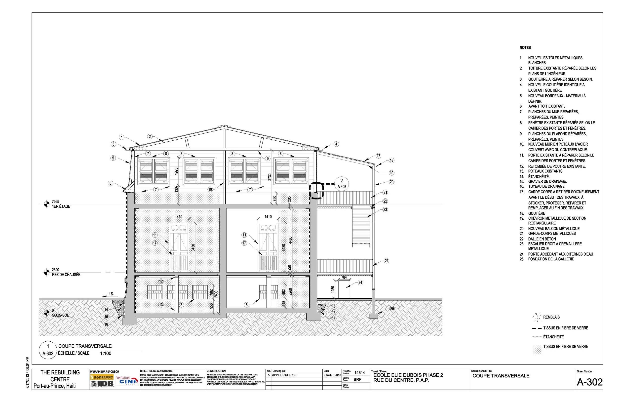
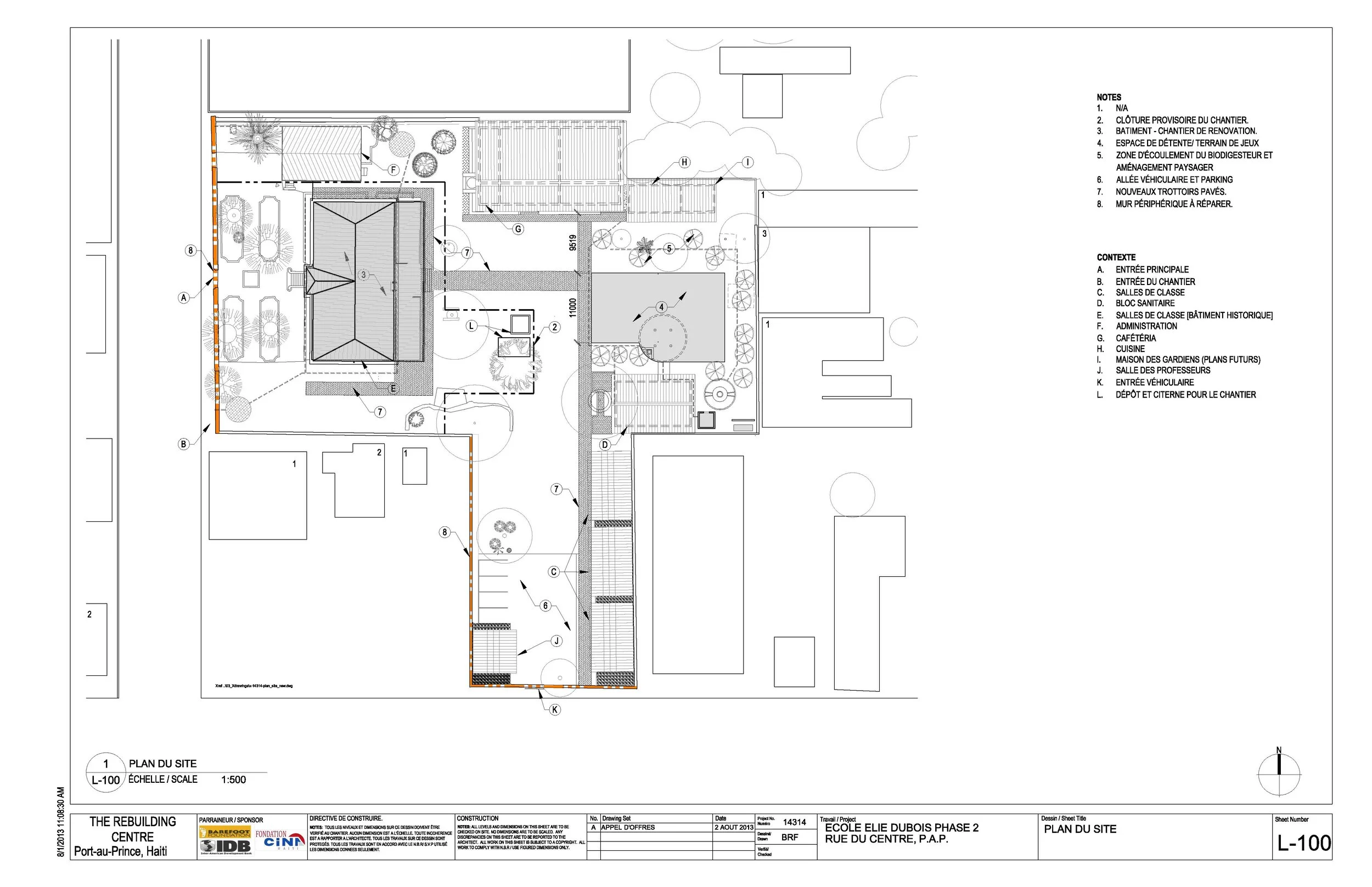
École Élie Dubois is an all girls secondary school located in the historic district of Port-au-Prince, a few blocks fromt the National Palace. Established in 1913 by the Community of the Daughters of Mary, École Élie Dubois began as a vocational boarding school. The school currently offers the standard Baccalaureate curriculum as well as professional skills and vocational training courses for embroidery, fashion, and decorative arts. The original historic classroom building, which faces the main entrance on Rue du Centre, was affected during the 2010 earthquake. As an architectural designer at Architecture for Humanity, I worked with the architectural and structural team to produce bidding documents for the rehabilitation of the century old building.

The restoration work on this historic campus was supported by the Barefoot Foundation, Fondation CINA, Students Rebuild with the Bezos family Foundation and Interamerican Development Bank (IDB).  

Réhabilitation de l'École Élie Dubois_Page_02.jpg
Réhabilitation de l'École Élie Dubois_Page_03.jpg
Réhabilitation de l'École Élie Dubois_Page_05.jpg
Réhabilitation de l'École Élie Dubois_Page_06.jpg
Réhabilitation de l'École Élie Dubois_Page_07.jpg
Réhabilitation de l'École Élie Dubois_Page_08.jpg
Réhabilitation de l'École Élie Dubois_Page_09.jpg
Réhabilitation de l'École Élie Dubois_Page_10.jpg
Réhabilitation de l'École Élie Dubois_Page_11.jpg
Réhabilitation de l'École Élie Dubois_Page_12.jpg
Réhabilitation de l'École Élie Dubois_Page_13.jpg
Réhabilitation de l'École Élie Dubois_Page_14.jpg
Réhabilitation de l'École Élie Dubois_Page_23.jpg
Réhabilitation de l'École Élie Dubois_Page_16.jpg
Réhabilitation de l'École Élie Dubois_Page_17.jpg
Réhabilitation de l'École Élie Dubois_Page_18.jpg
Réhabilitation de l'École Élie Dubois_Page_19.jpg
Réhabilitation de l'École Élie Dubois_Page_20.jpg
Réhabilitation de l'École Élie Dubois_Page_21.jpg
Réhabilitation de l'École Élie Dubois_Page_22.jpg
Réhabilitation de l'École Élie Dubois_Page_23.jpg
Réhabilitation de l'École Élie Dubois_Page_24.jpg
Réhabilitation de l'École Élie Dubois_Page_25.jpg
Réhabilitation de l'École Élie Dubois_Page_26.jpg
Réhabilitation de l'École Élie Dubois_Page_27.jpg
Réhabilitation de l'École Élie Dubois_Page_28.jpg
Réhabilitation de l'École Élie Dubois_Page_29.jpg
Réhabilitation de l'École Élie Dubois_Page_30.jpg
Réhabilitation de l'École Élie Dubois_Page_31.jpg
Réhabilitation de l'École Élie Dubois_Page_32.jpg

Réhabilitation de l'École Élie Dubois_Page_33.jpg

Réhabilitation de l'École Élie Dubois_Page_35.jpg

Réhabilitation de l'École Élie Dubois_Page_36.jpg

Réhabilitation de l'École Élie Dubois_Page_37.jpg

Réhabilitation de l'École Élie Dubois_Page_38.jpg

Réhabilitation de l'École Élie Dubois_Page_39.jpg

Réhabilitation de l'École Élie Dubois_Page_42.jpg

Réhabilitation de l'École Élie Dubois_Page_43.jpg


Réhabilitation de l'École Élie Dubois_Page_45.jpg

Find Similar Projects Below

Saint-Margaret Convent in Port-au-Prince

Saint-Margaret Convent in Port-au-Prince

Façade Design and Engineering in New York City

Façade Design and Engineering in New York City

Residential Design in New York City

Residential Design in New York City

BACK TO HOMEPAGE